Строительство дома на две семьи — это разумное решение, которое требует тщательного планирования. Главный ключ к успеху — изначальное юридическое оформление недвижимости как двух отдельных объектов. Если этого не сделать, в будущем при изменении состава семьи или жизненных обстоятельств общая собственность может стать источником сложностей. Правильно спроектированный дуплекс или таунхаус позволяет объединить преимущества индивидуального жилья с экономией средств и эффективным использованием земли.
Проект №1: Уютный кантри-стиль с мансардой
Этот проект предлагает роскошное проживание в двух просторных коттеджах, оформленных в духе загородного кантри. Площадь каждого дома составляет около 300 квадратных метров. Архитектура сочетает каменную отделку первого этажа со штукатуркой на втором и мансардном уровне. Внутри предусмотрено от пяти до шести спален, что идеально подходит для больших семей.
Проект №2: Современный одноэтажный формат с гаражом
Идеальное решение для размещения двух полноценных жилых пространств на участке с ограниченной глубиной, но достаточной шириной. Дома имеют общую стену и современный лаконичный дизайн, что делает проект экономичным и стильным.
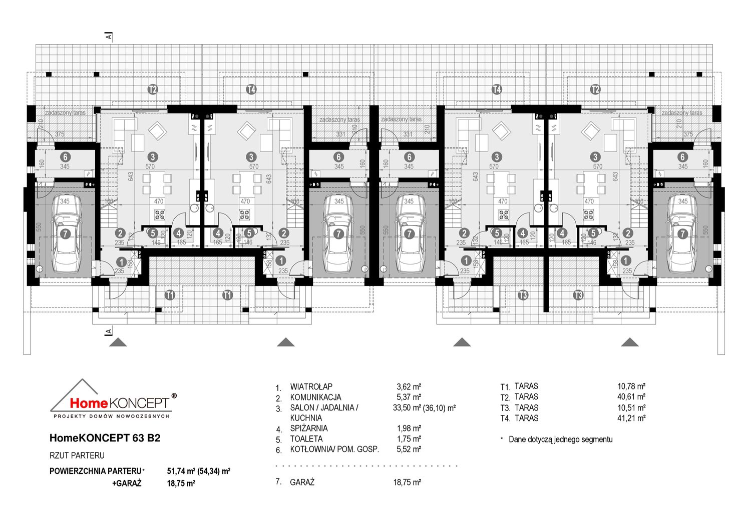
Проект №2: Продуманная планировка для комфорта
Планировка этого дома отличается грамотным зонированием: приватная зона с тремя спальнями и двумя ванными отделена от общественной, где расположена кухня-гостиная с выходом на террасу. Кухня оборудована функциональным полуостровом с барной стойкой. Соседние блоки соединены через технические помещения — гараж, кладовую и бойлерную.
Проект №3: Немецкий квадрохаус для компактной застройки
Проект в современном немецком стиле объединяет под одной концепцией четыре жилых блока. Каждый двухуровневый дом имеет на первом этаже гараж и совмещенную кухню-гостиную, а на втором — три спальни. Это эффективный пример высокой плотности застройки без потери качества жизни.
Проект №3: Первый уровень — общественное пространство
Планировка первого этажа продумана до мелочей. Помимо общей задней террасы, у каждого входа есть свое приватное крыльцо. В кухне предусмотрена удобная кладовая, а из гостиной через раздвижные стеклянные двери можно попасть прямо в сад, стирая границу между интерьером и природой.
Проект №3: Второй уровень — приватная зона отдыха
Второй этаж полностью отведен под отдых: здесь расположены три спальни и санузел с разделенными функциями (1.5 ванные). Дополнительные балконы расширяют жилое пространство и обеспечивают связь с окружающей средой. Такая планировка оптимальна для семьи с одним или двумя детьми.
Проект №4: Двойной таунхаус под одной крышей
Внешне этот дом выглядит как цельный современный коттедж, но внутри он разделен на два узких и компактных таунхауса. Такой подход позволяет создать иллюзию единого архитектурного объема, сохранив при этом полную автономность каждого жилого блока.
Проект №4: Функциональность первого этажа
На первом уровне компактно размещены все необходимые помещения: гараж, прихожая, гостевой санузел, кладовая и просторная кухня-гостиная. Г-образная планировка кухонного гарнитура с полуостровом делает пространство эргономичным и удобным для приготовления пищи и общения.
Проект №5: Второй этаж — пространство для семьи
Второй этаж отведен под приватные комнаты: три спальни, санузел (1.5 ванные) и гардеробная. Особенностью является просторный балкон, примыкающий к одной из детских комнат. Подобная организация пространства создает идеальные условия для семьи с детьми.
Проект №6: Минимализм и общая ландшафтная территория
Люксовый проект в стиле минимализм, где две виллы частично соприкасаются, образуя единый архитектурный ансамбль. Они гармонично вписаны в общую зеленую зону поселка, что подчеркивает концепцию единства с природой и лаконичность форм.
Проект №7: Французская неоклассика с изысканным фасадом
Вилла на две семьи, выполненная в элегантном французском стиле неоклассика. Фасад украшен рустом, а цокольный этаж отделан кирпичом. Каждая половина дома включает в себя кухню-гостиную, три спальни и две с половиной ванные комнаты, предлагая аристократичный комфорт.
Проект №7: Итальянское очарование в деталях
Дубль-дом, пронизанный духом Италии. Деревянные окна и двери, изящные кованые балконы, каменные колонны и традиционная черепичная кровля создают неповторимый уютный образ, напоминающий о средиземноморских виллах.
Проект №8: Двухквартирный дом с вертикальным зонированием
Интересное решение, где на двух этажах расположены две идентичные трехкомнатные квартиры. Вход может быть как общим (по типу подъезда с лестницей), так и раздельным, что обеспечивает гибкость в планировании и максимальную автономность для жильцов.
Проект №9: Двухмодульный дом для большой расширенной семьи
Люксовый проект, идеально подходящий для совместного проживания нескольких поколений одной семьи, например, родителей и взрослых детей с их семьями. Модульная структура позволяет сохранить близость, обеспечивая при этом необходимое личное пространство для каждой ячейки семьи.
Проект №10: Роскошь и геометрия стиля ар-деко
Величественный двойной дом в стиле ар-деко, главной изюминкой которого является парадный холл с эффектным двойным остеклением. Это прекрасный вариант для большой семьи, ценящей отдельные гостиные и кухни, но желающей жить под одной крышей в атмосфере ретро-роскоши.
Проект №11: Американский стиль для узких участков
Проект комбинированных домов, выстроенных в линию, специально разработан для узких городских или пригородных участков. Узнаваемый американский стиль подчеркивают белые колонны, фасадная расстекловка окон и декоративные медальоны на фронтонах.
Проект №12: Средиземноморское настроение в цвете песка
Завершает подборку проект комбинированного дома в средиземноморском стиле. Теплая песочная штукатурка, акценты из натурального камня и характерная черепичная кровля создают ощущение солнечного южного курорта и беззаботного отдыха.
Источник статьи: https://www.homify.ru/knigi-idej/7364419/dom-na-dve-semi-12-proektov
Источник статьи: https://www.homify.ru/knigi-idej/7364419/dom-na-dve-semi-12-proektov


