Молодая пара приобрела свою первую квартиру в старом доме, который является одним из предшественников панельного строительства. Жилье находилось в состоянии, требующем капитального ремонта: железобетонный каркас, панельные потолки и санузел из стеклотекстолита. Главными проблемами стали не только техническое состояние, но и крайне неудобная, темная планировка.

Проблемы старой планировки
Исходная планировка была совершенно не функциональной. Кухня, зажатая между ванной комнатой и кладовой, была тесной и неудобной. Центральная комната выполняла роль проходной, из-за чего вся квартира казалась темной и тесной. Длинный коридор неэффективно использовал пространство, а недостаток естественного света усугублял ощущение замкнутости.

Новая концепция: свет и простор
Проект реконструкции кардинально изменил пространство. Была создана удобная гостиная, объединенная с просторной кухней, и две отдельные комнаты. В прихожей архитекторы предусмотрели практичную систему хранения: вдоль всей стены разместились встроенные белые шкафы, которые, благодаря цвету и дизайну, не выглядят громоздко. У входа обустроена ниша с обувным шкафом и вешалкой из дубовых досок, что добавило уюта и функциональности.

Сердце дома: кухня-гостиная
Кухня, выполненная в форме буквы «U», стала просторной и светлой. Вдоль стены, смежной с санузлом, расположились высокие шкафы для кладовки, холодильник и духовой шкаф. Варочная панель, раковина у окна и столешница создали эргономичный рабочий треугольник. Стиральная машина, перенесенная из ванной, была встроена в кухонный гарнитур. Открытая полка между опорным столбом и стеной визуально отделяет кухню от гостиной, сохраняя ощущение единого пространства. Рядом с кухней разместился обеденный стол на четырех человек, а в зоне отдыха — просторный диван и телевизор.

Умная организация спальни и санузла
В небольшой спальне пространство использовано максимально эффективно. Напротив кровати находится большой встроенный шкаф, а пространство у окна между опорной колонной и стеной заняла многофункциональная тумба для белья, которая также служит прикроватным столиком. Ванная комната, сохранив прежние размеры, была полностью переосмыслена. Небольшую ванну заменила просторная душевая кабина во всю ширину комнаты. Дизайн выполнен в лаконичной гамме: белая пластиковая плитка на стенах и серая плитка «под бетон» на полу. Черно-белый узор использован в качестве акцента в прихожей и в нише за унитазом. Для хранения предусмотрена тумба под раковиной и встроенный зеркальный шкафчик. Технические элементы, такие как трубы отопления, были обыграны — их покрасили в черный цвет, превратив в дизайнерскую деталь. Туалет остался отдельным помещением.

Маленькую ванну заменила большая душевая кабина.

Туалет и после ремонта остался отдельным.
Цветовая палитра и материалы
Основой цветовой гаммы квартиры стал теплый цвет натурального дуба, который создает уютную атмосферу. Ему контрастируют чистый белый и глубокий черный. Напольное покрытие во всей квартире выполнено из дуба. Мебель изготовлена из белого ламината с декоративными элементами из дуба, такими как столешницы, ниши и открытые полки. В гостиной и на кухне в качестве акцента использована эпоксидная стяжка, имитирующая бетон. На кухне она выполняет защитную функцию для стены между шкафами, а в гостиной служит стильным декоративным элементом. Свободную стену владельцы планируют украсить картиной.

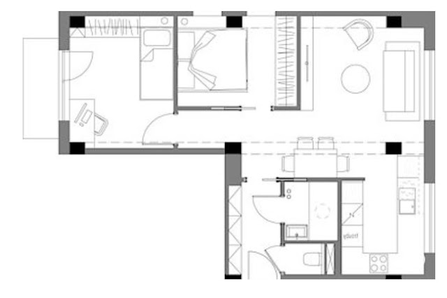
Первоначальная планировка

Новая планировка квартиры
Это вам тоже будет интересно:

