Не дом, а родовая память

Проект дома с 2 спальнями
Представьте себе место, куда хочется возвращаться всегда. Не из-за удобного расположения или модного ремонта, а потому что там пахнет детством. Пахнет яблочным пирогом, дымком от камина и свежевыструганным деревом. Дом, где каждый уголок знает ваши шаги, а стены, кажется, впитывают и хранят счастье.
Этот дом на сто квадратов — именно такое место. Он не бросается в глаза, а скромно стоит под сенью деревьев, словно сошёл со страниц чеховской прозы. Его тёмный фасад, белоснежные прорезные орнаменты, напоминающие морозные узоры, и добротный каменный цоколь — всё это рождает чувство щемящей ностальгии по чему-то, чего, казалось бы, никогда не было в нашей жизни. По дому, который был бы не просто «жилплощадью», а настоящим семейным гнездом. Финно-угорская мягкость линий и сдержанность орнаментов лишь подчёркивают это ощущение — здесь нет места суете, здесь царит покой.

Уют и свежесть

Терраса

Утренняя дымка

детальки дома
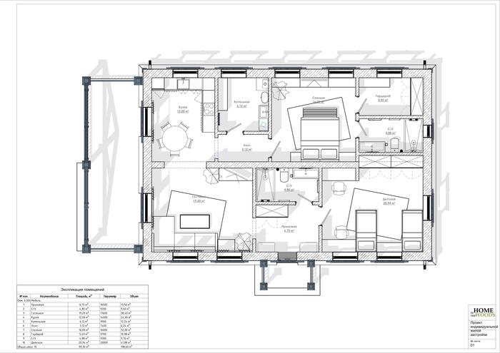
Планировка, где жизнь течёт неспешно
Вы переступаете порог — и время замедляет свой бег. Планировка этого дома удивительно тёплая и интуитивно понятная, будто его и впрямь строили в конце XIX века, думая о больших семьях и долгих вечерах.
Его сердце — кухня-гостиная. Просторная, светлая, с большим столом, за которым умещается вся семья. Здесь варят кофе по утрам, обсуждают новости днём и читают вслух вечерами. Отсюда можно выйти в сад, где цветут пионы и сирень.
Две спальни — это не просто комнаты для сна. Это личные миры. В одной просыпаешься под лучи утреннего солнца, в другой — под шепот дождя по крыше. Они расположены так, чтобы у каждого был свой уголок уединения, но все были рядом. Здесь нет коридоров-лабиринтов, есть уютное, логичное пространство, где дети всегда на виду, а у взрослых есть возможность уединиться.

Планировка
Надёжность, которую не видно, но чувствуешь
Конечно, мечта должна стоять на прочном фундаменте.
Обратите внимание: Проект квартиры площадью 37 м2.
И здесь мы подумали о том, чтобы ваши внуки не знали хлопот.-
Фундамент — монолитная плита. Он как каменная ладонь, на которой надёжно покоится весь дом. Никаких перекосов, никакой сырости.
-
Стены сложены из тёплого газобетона. Они дышат, как старые деревянные срубы, но при этом хранят тепло долгими зимними вечерами. Это не просто стены — это тёплые объятия для вашей семьи.
-
Кровля — классическая, проверенная временем стропильная система. Прохладный чердак, где так здорово играть детям, надёжно утеплён, словно дом укрыт тёплым одеялом. Здесь не жарко летом и не холодно зимой.
Мы не стали выставлять технологии напоказ. Мы спрятали их, чтобы на первом плане оставались только уют и покой.

Уютная терраса

Мопс на участке
Дом, который останется в веках
И вот, представьте себе будущее. Лет через тридцать. Ваши повзрослевшие дети привозят к вам внуков. И пока вы достаёте из буфета старый сервиз, вы слышите, как ваш сын говорит своему ребёнку: «Смотри, а вот этот узор на окне вырезали ещё при твоём прадеде. Это наше дерево. Наша история».
Этот дом — не актив, который можно обменять на деньги. Его не продадут, потому что нельзя продать память. Нельзя продать ощущение дома. Он будет стареть благородно, как хорошее вино, становясь только ценнее для вашей семьи.
Больше интересных статей здесь: Дизайн.
Источник статьи: Проект дома с 2 спальнями, Финно-угорская душа.

