У этой квартиры необычная планировка, но хозяйку квартиры покорил вид из окна на Серебряный бор. Именно он стал решающим фактором при покупке именно этой жилплощади. Для ремонта наша героиня пригласила практикующего архитектора-дизайнера.
Проект
- Место: Москва
- Площадь квартиры: 50 квадратных метров
- Владелец: женщина
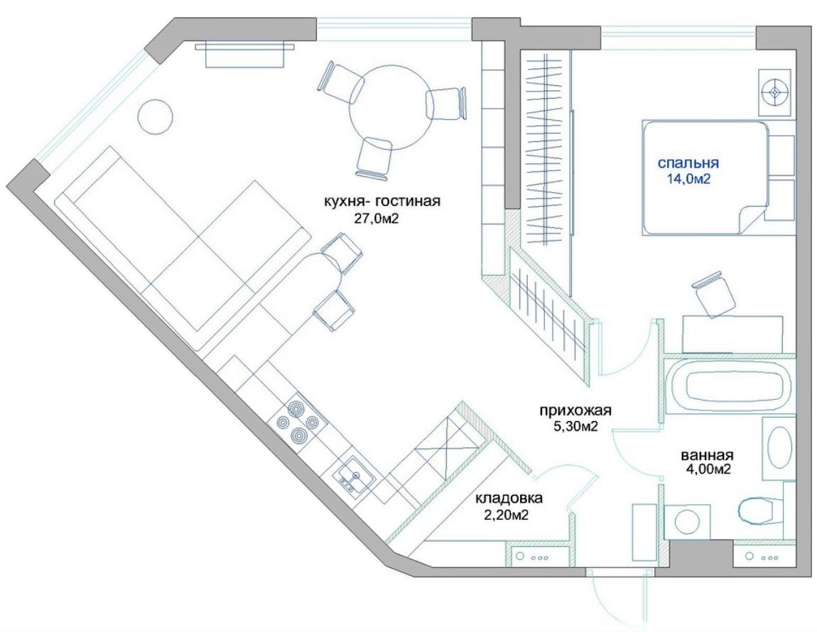
Благодаря грамотной планировке, которую сделал дизайнер, на 50 квадратных метрах удалось организовать кухню-гостиную, изолированную спальню и небольшую кладовку.
Прихожая
Прихожая выполнена в светлых тонах. На пол уложена испанская глянцевая плитка. Между гостиной и прихожей расположена встроенная система хранения с зеркальной дверью-гармошкой.
Кухня-гостиная
При входе в комнату находилась кухня. На полу в елочку уложена инженерная доска, а рядом с рабочей зоной уложена такая же испанская плитка. Фартук на кухне выложен светлой мозаикой.
Обратите внимание: Как преобразить квартиру с помощью правильного освещения.
За барной стойкой стоит большой угловой диван, который при необходимости можно раздвинуть. Напротив него появилась ТВ-зона и декоративный каминный портал. Обеденная группа была организована справа от камина. Стеллажи с открытыми и закрытыми секциями хранения монтировались к стене.
Спальня
Слева от входа в спальню была организована система хранения. Посередине комнаты двуспальная кровать с мягким изголовьем. Справа от кровати, в нише, рабочая зона для хозяйки. Дверь со стороны спальни облицована массивным зеркалом.
Ванная комната
Ванная комната выполнена в светлых тонах с яркими золотыми акцентами. Вся ванная комната облицована керамогранитом, а стена у раковины и каркас ванны облицованы мозаикой.
Если вам понравилась статья, то не забудьте поставить лайк и подписаться, чтобы не пропустить новый материал!
Также напишите в поле для комментариев, что вам понравилось в этом проекте, а в чем есть сомнения.
Больше интересных статей здесь: Дизайн.
Источник статьи: Данную квартиру наша героиня приобрела совсем недавно в Пресненском районе столицы.

